Makarska jednosoban stan centar

Značajke

  • Blizina mora
  • Energetski certifikat
  • Internet priključak
  • Klimatizacija
  • Lift
  • Namješteno
  • Opremljeno
  • Stambena gradnja
  • Uporabna dozvola
  • Vlasnički list

Pregled

Jednosoban dvoetažan stan na atraktivnoj i mirnoj lokaciji, u strogom centru Makarske. Nekretnina je 200 m udaljena od mora, a svi potrebni sadržaji za život (odmor) dostupni su u krugu od 100 m.
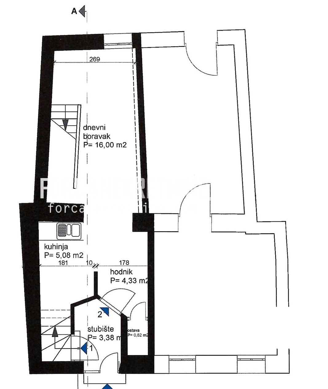
Stan ukupne površine 47,80 m2 sastoji se od 2 etaže. Na prvoj etaži (prizemlje) nalazi se kuhinja, wc, blagovaonica i dnevna soba sa stubištem koje vodi na drugu etažu. Na drugoj etaži (1. kat) nalazi se spavaća soba i kupaonica. Stan je namješten, klimatiziran i odmah spreman za korištenje.

Plans

s517.1-tlocrt-prizemlje-1.jpg

s517.1-tlocrt-1.-kat.jpg

  • ID: 6946
  • Views: 2453