Makarska, zemljište 615m2 s Idejnim projektom

Značajke

  • Pogled na more
  • Pristupni put-asfalt
  • Stambena gradnja
  • Vlasnički list

Pregled

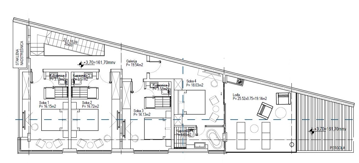
Makarska, zemljište predio Požare ukupne površine 615m2 s Idejnim projektom za samostojeći objekt s vanjskim bazenom površine 41m2. Prema projektu planirani objekt je ukupne površine 339m2 te se sastoji od suterena površine 105,76m2, prizemlja površine 108,96m2 i prvog kata površine 122,44m2. U suterenu se nalazi garaža za dva vozila, fitnes, ostava s tehničkom sobom, wc, sauna i hodnik. U prizemlju su planirani prostrani dnevni boravak s kuhinjom i blagovaonicom, vinoteka te kupaonica, prizemlje je povezano s dvije vanjske terase površine 97m2 u vanjskim bazenom. Untrašnje stubište vodi do prvog kata u kojem su četiri spavaće sobe s kupaonicama, te lođa površine 25m2.

Plans

suteren.jpg

prizemlje.jpg

1 kat.jpg

  • ID: 14960
  • Views: 793