Zagvozd zemljište s dozvolom za dvije vile sa bazenom

Značajke

  • Balkon
  • Bazen
  • Garaža
  • Pristupni put-asfalt
  • Stambena gradnja
  • Vlasnički list

Pregled

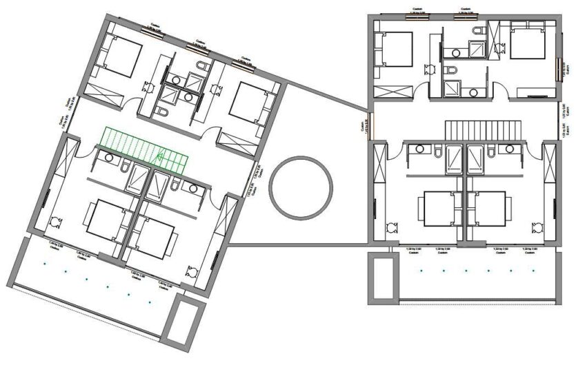
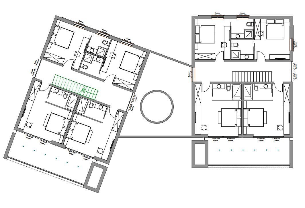
Posredujemo u prodaji zemljišta u Zagvozdu , predio Alagići. Zemljište je ukupne površine 1414m2. Prema gređavinskim dozvolama na ovom zemljištu je predviđena gradnja dvojnog objekta s vanjskim bazenima. Objekti su povezani zajedničkim vanjskim stepeništem te se sastoje od prizemlja u kojem su smještene garaže i manji studio apartmani, te dva kata. Na prvom katu se nalazi prostrani dnevni boravak s kuhinjom i blagovaonicom, izlazom na vanjsku terasu. Na drugom katu su smještene četiri spavaće sobe s kupaonicama te prostranim balkonom. Zemljište se nalazi u mirnom susjedstvu s novim vilama.s

  • ID: 14663
  • Views: 404